Back
More information
Atu-Chadron
10/03/2026
Pour Loïc:
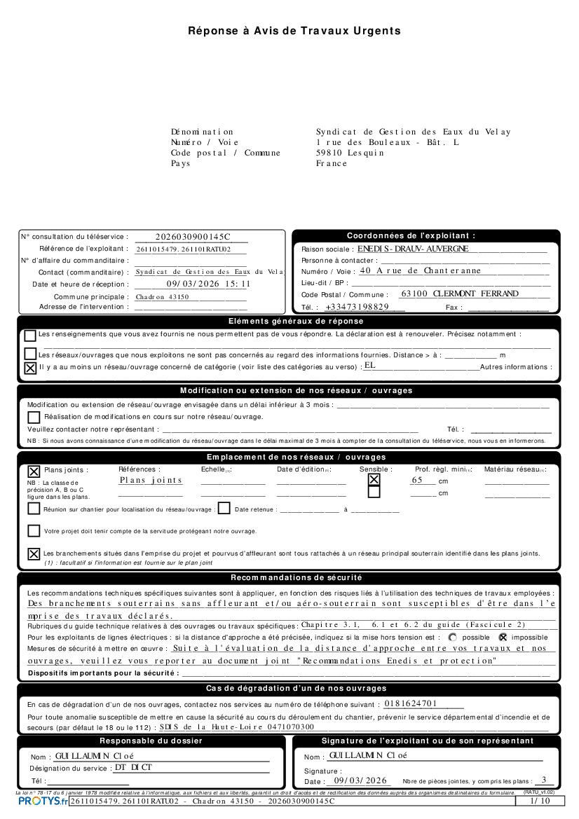
Ci-joint la réponse ENEDIS